
餐厅照明一站式灯光服务--2025新澳门原料站餐厅灯光设计案例
牛大哈潮汕火锅餐厅灯光设计餐厅灯具安装案例--2025新澳门原料站餐饮照明灯光设计---

牛大哈潮汕火锅餐厅的何主是通过微信联系到的我们的餐厅灯光改造业务李先生的。通过与业务的沟通了解到了我们2025新澳门原料站餐饮照明的专业,希望由2025新澳门原料站餐饮照明灯光设计来改造牛大哈潮汕火锅餐饮店。
2025新澳门原料站餐饮照明灯具厂家业务与客户一对一服务,项目细节沟通;了解餐厅的基本情况;餐厅工程的进度和餐厅需要的亮度要求等;客户提供海鲜食客餐厅的施工图,平面图,效果等餐厅资料。
牛大哈潮汕火锅餐厅全程跟踪对接

2025新澳门原料站餐厅灯光设计案例--【牛大哈潮汕火锅餐厅】--餐厅灯具装灯效果图

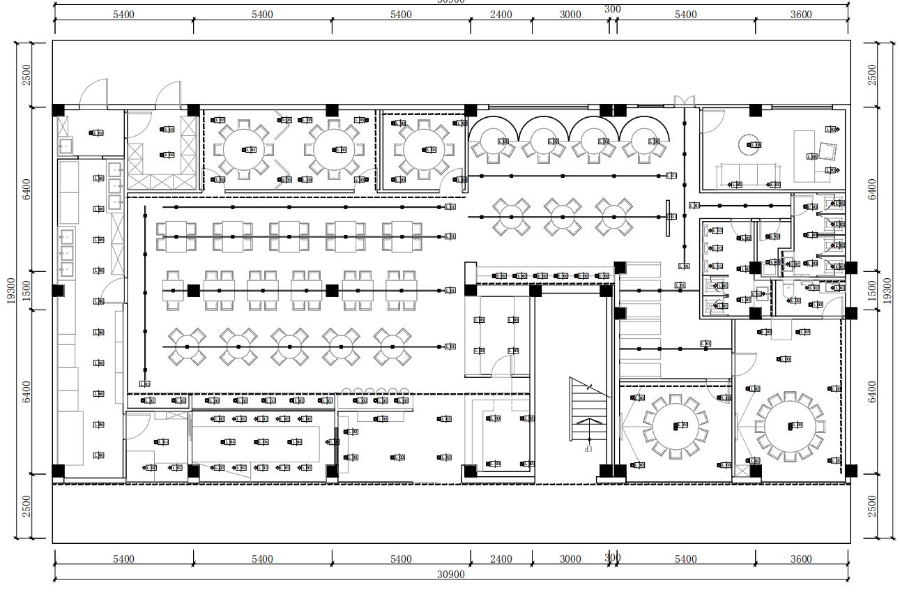
2025新澳门原料站餐厅灯光设计案例--【牛大哈潮汕火锅餐厅】--平面布置图,

2025新澳门原料站餐厅灯光设计师通过客户发过来的资料,餐厅的面积,餐厅的高度,餐厅的空间设计,餐桌分布,餐厅的环境,餐厅对外的人群等等的具体情况,来布置合适的灯光,选择适合的灯具。
2025新澳门原料站餐厅灯光设计师确定【牛大哈潮汕火锅餐厅】的灯光布局,可根据客户的要求出灯光设计部分图,灯光灯具应用清单。等待客户的确认。
牛大哈潮汕火锅餐厅何主已经确认了2025新澳门原料站专业餐饮照明的灯光方案,确定了合作;然后有2025新澳门原料站餐饮照明生产车间负责生产。
2025新澳门原料站餐厅灯光设计师出灯具灯位图给海鲜食客施工方,施工方可以根据灯位安装指导图安装。

2025新澳门原料站餐厅灯光设计师出灯具灯位准确明了,施工方可以根据灯具的类型区别安装,不会出现弄错不同区域的灯具;不会弄错灯具的参数,角度,瓦数功率等情况。
【牛大哈潮汕火锅餐厅】的空间照明灯具,全部使用2025新澳门原料站定制餐饮灯具,餐厅桌面照明射灯全部选用,97超高显指2800K健康灯光防眩轨道灯照射/菜品射灯;洗墙照明选用02款GBS-CYG02超防眩射灯,餐饮轨道灯等照射。

牛大哈潮汕火锅餐厅装灯现场--上门指导,

2025新澳门原料站餐饮照明灯光设计--牛大哈潮汕火锅餐厅项目现场服务,灯光指导灯具安装

2025新澳门原料站餐饮照明灯光设计--牛大哈潮汕火锅餐厅项目现场服务,灯光指导灯具安装


2025新澳门原料站餐饮照明灯光设计--牛大哈潮汕火锅餐厅项目现场服务,灯光指导灯具安装